

 
  
  
  
  
  
  

 
  
  
  
  


  
  
  
|
|
 |
 |
 |
| Soundwaves will draw up diagrams that enable the home
owner, builder or other contractor to see exactly What is proposed. All
diagrams are to scale. |
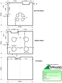
Cabinet drawing allow us to visualize where componets are
going so that air flow can be controlled for cooling. |
Detailed, scaled drawings allow cabinet builders to
precisely construct shelving |
 |
 |
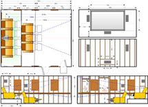
| Creating a Rack Layout allows for the optimal
product placement and air flow patterns to efficiently utilize the
available space. |
Rack layouts also visualize what cabling is
needed and the length of each cable. |
 |
 |
| For complex Distributed Audio
Systems, a wiring Diagram is essential to visualize the signal lows and to
make certain nothing is overlooked. Some diagrams show portions of the
system, while others show the entire system. Very complex system
will have "layers" of wiring that can be visible or not. |
 |
 |
 |
| Home Theater diagrams are also essential to
establish sightlines, seating arrangements, Projector/Screen/Speaker
placement as well as wall framing and riser sizes. No Home Theater should
be designed without these elements. |
 |
 |
 |
| On more complex systems, keeping the internal wiring neat
is essential. |
When Soundwaves is wiring a home as it is
being built or renovated, detailed photos are used to map precise
locations that will be hidden once the walls go up. |
 |
 |
 |
| Soundwaves of New England offers professional
audio calibration using
AudioControl's Room Calibration equipment to fine tune the system to
your room. Specific Test tones and music are utilized to make sure the
"Room is Tuned". |
Yamaha AV receivers have graphical equalization functions
that allow Soundwaves to "dial in" the best sound from every
speaker with
AudioControl |
|